电话:0512-53660792
手机:13906223302
EN
当前位置:首页 > 产品中心 > 制粒设备系列

制粒设备系列

产品中心
专注干燥设备的研发生产与销售

PGL系列喷雾干燥制粒机

产品介绍:

本机组工作过程为料液通过隔膜泵高压输入,喷出雾状液滴,然后同热空气并流下降,大部分粉粒由塔底排料口收集,废气及其微小粉末经旋风分离器分离,废气由抽风机排出,粉末由设在旋风分离器下端的授粉筒收集,风机出口还可装备二级除尘装置,回收率在96-98%以上。

在线联系

产品概述

  本机组是一种可以同时完成干燥和造粒的装置。按工艺要求可以调节料液泵的压力、流量、喷孔的大小,得到所需的按一定大小比例的球形颗粒。
  本机组工作过程为料液通过隔膜泵高压输入,喷出雾状液滴,然后同热空气并流下降,大部分粉粒由塔底排料口收集,废气及其微小粉末经旋风分离器分离,废气由抽风机排出,粉末由设在旋风分离器下端的授粉筒收集,风机出口还可装备二级除尘装置,回收率在96-98%以上。
  本机组与物料接触部分的塔体、管道、分离器的材料,均采用SUS304制作。在塔体内部与外壳之间有足够的保湿层,填充材料为超细玻璃棉,塔体设有观察门、视镜、光源及控制仪表,由电器控制操作台控制和显示。

产品应用

制药工业:片剂、冲剂、胶囊剂颗粒;低糖、无糖的中成药颗粒; 食品:可可、咖啡、奶粉、颗粒果汁、调味品等; 其它行业:农药、饲料、化肥、颜料、染料等。

产品特点

1、干燥速度快,料液经雾化后表面积大大增加,在热风气流中,瞬间就可蒸发95%-98%的水份,完成干燥的时间仅需要十几秒到数十秒种,特别适用于热敏性物料的干燥。
2、所有产品为球状颗粒,粒度均匀,流动性好,溶解性好,产品纯度高,质量好。
3、使用范围广,根据物料的特性,可以用热风干燥, 也可以用冷风造粒,对物料的适应性强。
4、操作简单稳定,控制方便,容易实现自动化作业。

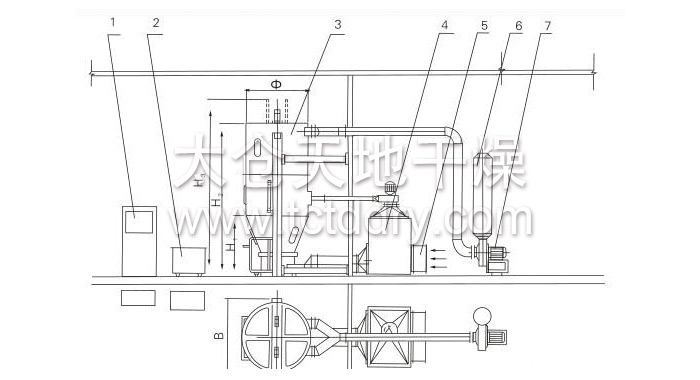
结构示意图

喷雾干燥制粒机结构示意图

1、控制柜 2、输液小车 3、主机 4、换热柜 5、亚高效过滤器 6、消声器 7、引风机

技术参数

项 目 单位/机型 PGL-3B PGL-5B PGL-10B PGL-20B PGL-30B PGL-80B PGL-120B
流浸膏 min kg/h 2 4 5 10 20 60 100
max kg/h 4 6 15 30 40 100 140
沸腾能力 min kg/批 2 6 10 30 60 100 150
max kg/批 6 15 30 80 160 250 450
液体比重 kg/L ≤1.30
原料容器量 L 26 50 220 420 620 980 1600
容器直径 mm 400 550 770 1000 1200 1400 1600
引风机功率 kw 3.0 5.5 7.5 11 15 18.5 30
辅风机功率 kw 0.35 0.75 0.75 1.20 2.20 2.20 4
蒸汽 耗量 kg/h 40 70 99 210 300 366 465
压力 Mpa 0.40-0.60
电热型功率 kw 9 15 21 25.5 51.5 60 75
压缩空气 耗量 m3/min 0.5 0.8 0.8 0.9 1.1 1.3 1.8
压力 Mpa 0.40-0.60
作业温度 °C 室温-160°C自动调节
产品水份 % ≥0.2
物料收得率 % ≥99
设备噪音 dB <77
主机尺寸 Φ mm 400 550 770 1000 1200 1400 1600
H1 mm 940 1050 1070 1220 1570 1590 1690
H2 mm 1900 2360 2680 3150 3630 4120 5050
H3 mm 2050 2590 3020 3600 4180 4770 5800
B mm 740 890 1110 1420 1620 1820 2100

选型例:要求每批次处理流浸膏量 I=120kg(含固量为30%)、种子量II=60kg,可由I、II得出理论成品量 M=mI+mII=120kgx30%+60kg=96kg,工作时间T=120kg/30kg/h=4h,技术参数栏中可查出沸腾量为标准载荷范围,故以每班完成两个批次,选用PGL-30型较为适宜。

应用客户
视频集锦
暂无相关视频...
动画演示

相关工程
    暂无相关工程...
在线反馈
相关文章
真空干燥机如何水分去除
2022-09-09 15:23:38

真空干燥机在过滤装置后从湿粉中除去水/溶剂方面非常成功。它们可用于化工产品中的各种产品(晶体和无定形),精细化工,中间体和重要的制药工业。双锥干燥机是实…

Copyright 2017 太仓市天地干燥设备有限公司 天地干燥设备 苏ICP备16000477号-1 版权声明 技术支持:江苏东网科技
Top
苏公网安备32058502011709号